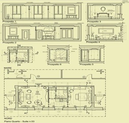
The Grand Hotel of Alassio is a well known example of Liberty Architecture on the italian riviera. The building after many years in a state of neglect is now going trough an extensive restoration process with the goal of bring him back to the original magnificence .
We are entitled to define the interior design for the guest rooms and suites plus design the architecture for the new Restaurant Pavilion that will be build outside the Grand Hotel.
ALASSIO- GRAND HOTEL D’ALASSIO
Residenziale
Ricettivo
Terziario
COPYRIGHT © 2010
