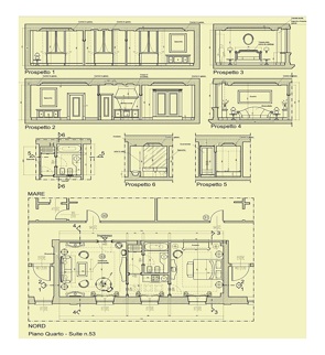
The Grand Hotel is a stunning example of XIX century italian architecture. The building went trough a complete and deep restoration finalized to restore his original beauty. The interior design has been conceived with a great respect of the cultural identity of the Grand Hotel trying to recreate the luxury environment deserved for this building.
ALASSIO- GRAND HOTEL D’ALASSIO
Residenziale
Ricettivo
Terziario

COPYRIGHT © 2010