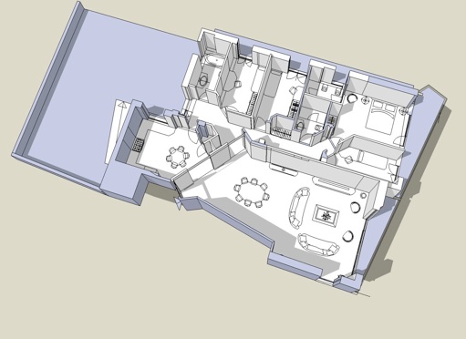
L’attico si sviluppa su due livelli con una superficie complessiva di 200mq interni e 250 mq di terrazzi. Il progetto realizzato vuole risolvere le necessità della committenza presentando un’ampia zona notte con quattro camere da letto dotate dei necessari servizi. La vivibilità della zona giorno è garantita da un ampio salone in collegamento con la cucina vivibile e l’adiacente terrazzo inferiore. Al piano superiore è situato il terrazzo con gazebo, mini-piscina ed ampia zona relax.


