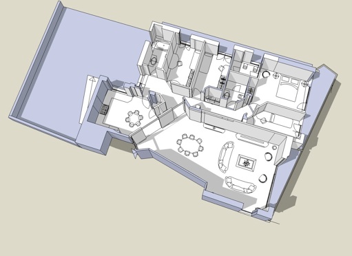
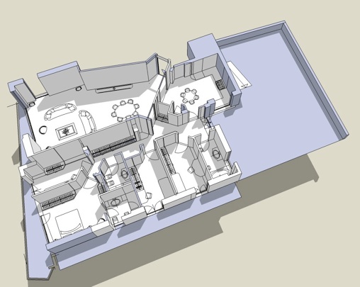
This two stories penthouse is spread over 200 square meters of interior spaces and 250 of exterior areas. The project fulfilled the needs of the clients for a big night area with four bedrooms with included bathrooms and a generous day-time area with the kitchen connected to the living spaces.
The exterior shows two terraces: one on the main floor and the big one at the upper floor. The big one, provided with a gazebo and a small swimming pool, is an amazing place where you can enjoy the view of Rome , relax and have party time.
