Il Grand Hotel è un notevole esempio di architettura liberty situato lungo il rinomato lungomare di Alassio.
Sono previsti interventi mirati a garantirne la staticità, la fruibilità degli spazi all’interno di un progetto più ampio che preveda la realizzazione di un centro talassoterapico afferente all’albergo ed un parcheggio multipiano sotterraneo nella piazza prospiciente il Grand Hotel.
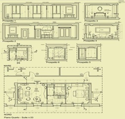
L’incarico affidato riguarda lo studio di Interior Design per le Camere e Suite e la realizzazione del nuovo corpo di fabbrica per il ristorante esterno.
ALASSIO- GRAND HOTEL D’ALASSIO
Residenziale
Ricettivo
Terziario
COPYRIGHT © 2010
